
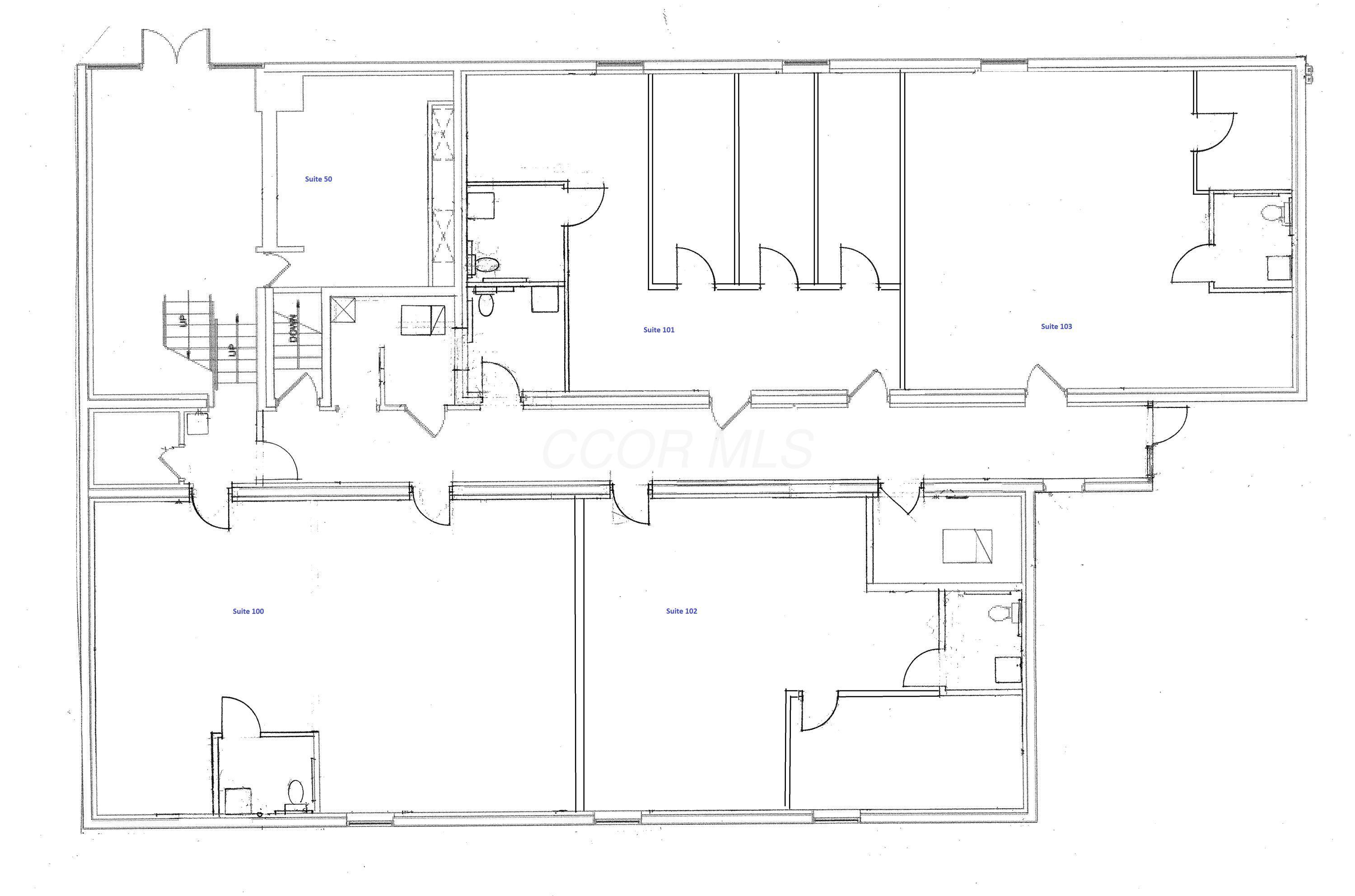
Great opportunity for investment / rental income / business expansion / partial owner occupancy. 2 level office building. Total 10260 Sq Ft. Extensive remodel/update in 2011/2012: new roof w/ 15 yr warranty (until 2026), new insulated roof decking, new roof access ladder, new exterior stucco, new windows in all office suites. Upper level: remodeled in 2012, new HVAC, updated plumbing and electric. Lower level was completely remodeled 2020/2021 and updated to ADA compliance: new electric/plumbing/HVAC/bathrooms, LED light panels throughout (very low energy consumption). New hot water heater 7/06/2021. Occupancy is at 74% generating annually $90785. Excellent for 1031 exchange. Listing broker has ownership in the property. Please, do not disturb tenants. Excellent for 1031 exchange.
| MLS # | 225035596 |
|---|---|
| Listing Type | For Sale |
| Style | Office |
| Sub-Type | Resale |
| Status | Active |
| Year | 1964 |
| Days On Site | 51 |
| Listing Provided By | Online Realty | Alex Patlashenko |
| SQ Feet | 10,260 |
|---|---|
| Story(s) | 1 |
| Acreage | 0.68 |
| Property | 13108 |
|---|
| State | OH |
|---|---|
| County | Franklin |
| City | Columbus |
| Zip Code | 43227 |
| State | OH |
|---|---|
| County | Franklin |
| City | Columbus |
| Zip Code | 43227 |